Business

In north Charlotte, The Park Church expands affordable housing options again

The Park Church in Charlotte’s Sunset Road neighborhood plans to add more affordable housing to its sprawling property.

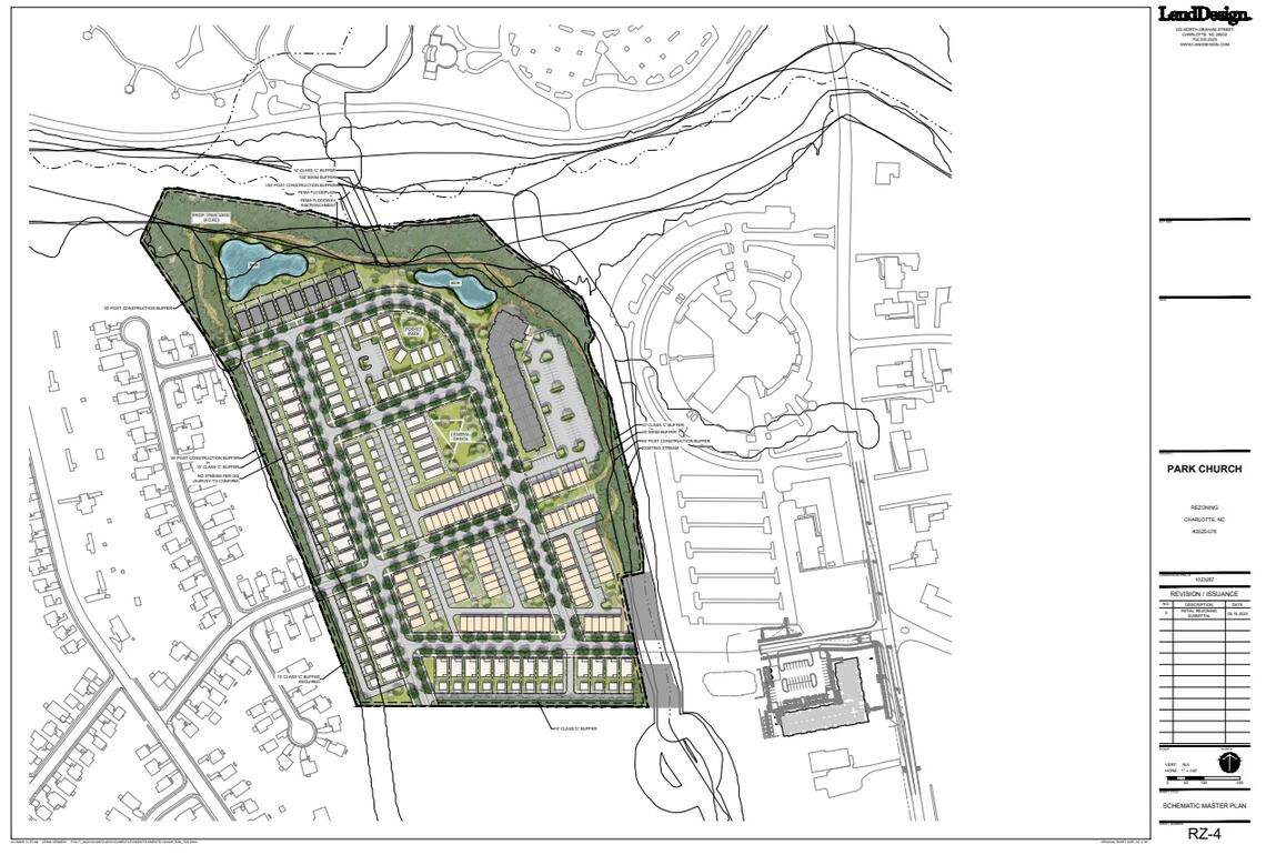
The church filed a rezoning petition with the city on June 13 to transform the 30 acres behind its sanctuary on Beatties Ford Road into more than 300 affordable residential units.

The church didn’t immediately respond to a request for comment on the project.

But this isn’t the first time The Park Church has used its land for housing. Nor is it the first house of worship in Charlotte to convert unused land into apartments or town houses.

It’s becoming a trend among religious organizations, one that the city hopes will continue to spread as the need for housing and affordable housing grows.

“There’s a need for continued collaboration and networking for us to address housing challenges,” city Councilwoman LaWana Mayfield,told The Charlotte Observer earlier this year. “When we look at the opportunities of where faith institutions come into play…we know land is the most expensive cost (of housing) off the bat, and churches have quite a bit of land…

“If that faith-based organization has under-utilized building space or land, what would that look like to identify funding and support to help them retrofit their space?”

The Park Church on Beatties Ford Road is planning to add more affordable housing to its property. In a rezoning request, the church is looking to build over 300 residential units..
The Park Church on Beatties Ford Road is planning to add more affordable housing to its property. In a rezoning request, the church is looking to build over 300 residential units.. Lila Turner lturner@charlotteobserver.com

The Park Church and affordable housing

For The Park Church, converting its unused space looks like several housing projects.

According to the recent rezoning request, the church wants to build 92 single-family homes, 95 town house-style units and 130 age-restricted apartments for an independent-living facility.

Rendering of the proposed development behind The Park Church. The church filed a rezoning petition to transform the 30 acres behind its sanctuary on Beatties Ford Road into more than 300 affordable residential units.
Rendering of the proposed development behind The Park Church. The church filed a rezoning petition to transform the 30 acres behind its sanctuary on Beatties Ford Road into more than 300 affordable residential units. Courtesy of the city of Charlotte

Units will be for-sale or lease and they’ll be income-restricted for those earning between 60% and 120% of the area median income, according to the rezoning application. For a family of four, that’s an income between $67,320 and $134,640.

Development plans also include a pocket park and several other green spaces.

The applicant listed on the rezoning petition is developer Prosperity Alliance, which is currently building affordable town houses on the former Economy Inn site in the Hidden Valley neighborhood.

The Park Church’s first housing project was completed in 2023.

Gilfield Park offers 80 units of affordable housing to seniors age 55 and older. The units were for those earning less than 80% AMI, which is $71,800 or below for a family of two.

The Gilfield project is by church development firm The Park Community Development Corp. in partnership with the city, Bank of America, LISC Charlotte and Laurel Street Residential.

The Gilfield Park Apartments is an affordable housing option for seniors in Charlotte, NC, Monday June 23, 2025.
The Gilfield Park Apartments is an affordable housing option for seniors in Charlotte, NC, Monday June 23, 2025. Lila Turner lturner@charlotteobserver.com

Charlotte churches and affordable housing

The Park Church joins other religious organizations around the city in closing the gap on affordable housing. The latest Park Church news was first reported by The Charlotte Ledger newsletter.

In 2023, Mayfield Memorial Missionary Baptist Church, alongside DreamKey Partners, built Sugree Place, a 51-unit complex in Sugar Creek for those in the 30% to 80% AMI range.

A rezoning request was approved for Newell Presbyterian Church and DreamKey last year to build 56 single-family attached town houses on church property. Those will be for-sale for residents earning 80% AMI.

DreamKey is also working with Caldwell Presbyterian Church to convert an on-site building into Easter’s Home, 21-units of permanent supportive housing for people experiencing chronic homelessness.

One of the city’s goals is to bring more faith-based organizations into the housing fold.

Councilwoman LaWana Mayfield (right) is leading the Faith in Housing initiative, connecting places or worship with city officials and developers to build affordable housing.
Councilwoman LaWana Mayfield (right) is leading the Faith in Housing initiative, connecting places or worship with city officials and developers to build affordable housing. John D. Simmons For the Observer

The Faith in Housing initiative looks to connect interested religious organizations with city officials, community agencies and developers to build affordable housing. The city has hosted several workshops on the initiative explaining to organizations about funding mechanisms, ways to add on supportive services and what the impact could be with building housing on their land.

As Mayfield said, it’s another way Charlotte is trying to bring in as many partners as possible to build affordable housing.

“This is not a government-alone conversation,” Mayfield said. “We can’t buy our way out of this situation without having corporate leaders, businesses as well as our faith community at the table to help address this.”

This story was originally published June 20, 2025 at 6:00 AM.

Desiree Mathurin
The Charlotte Observer
Desiree Mathurin covers growth and development for The Charlotte Observer. The native New Yorker returned to the East Coast after covering neighborhood news in Denver at Denverite and Colorado Public Radio. She’s also reported on high school sports at Newsday and southern-regional news for AP. Desiree is exploring Charlotte and the Carolinas, and is looking forward to taking readers along for the ride. Send tips and coffee shop recommendations.
Get unlimited digital access
#ReadLocal

Try 1 month for $1

CLAIM OFFER